





✨ NEXT LEVEL IMOB vă prezintă un apartament elegant și bine compartimentat, situat într-un imobil tip P+1E din cartierul Găvana III – o zonă apreciată pentru liniște, accesibilitate și siguranță.
🏠 DETALII APARTAMENT:
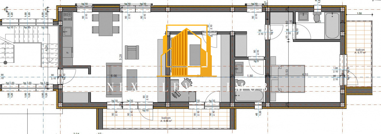
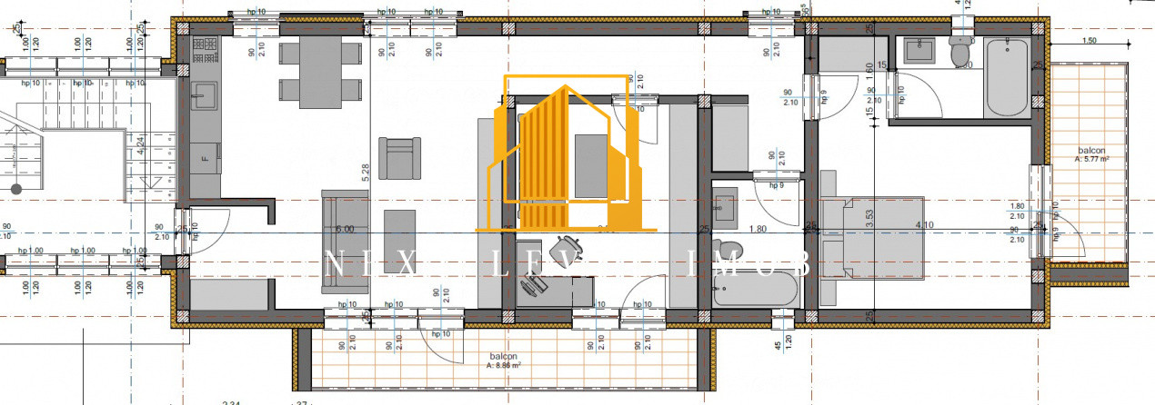
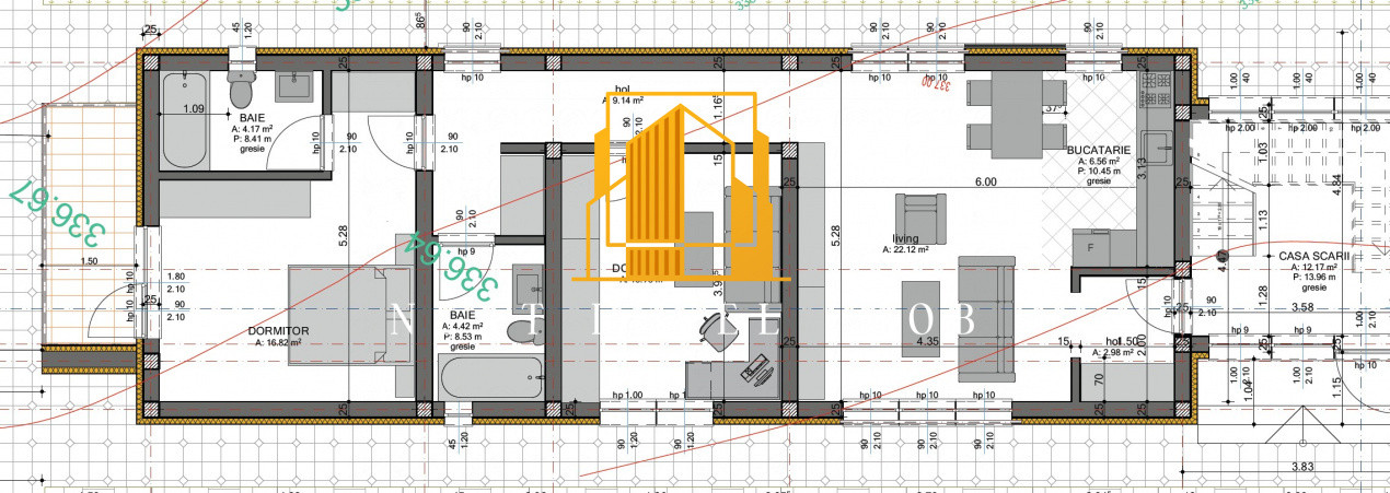
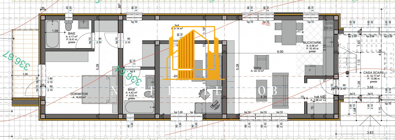
✅ Compartimentare ideală: living spațios, bucătărie, 2 dormitoare (dintre care unul matrimonial)
✅ 2 băi moderne
✅ Terasă generoasă perfectă pentru relaxare
✅ Hol de acces
✅ Suprafață optimă pentru confort și funcționalitate
✅ 2 locuri de parcare proprii
🏢 DETALII IMOBIL:
✅ Regim de înălțime: P+1E
✅ Construcție din cărămidă Porotherm – eficiență termică și rezistență excelentă
✅ Încălzire în pardoseală totală pentru un confort uniform
✅ Centrală termică Bosch sau Viessmann
✅ Curte comună de 800 mp, complet împrejmuită și cu acces securizat
✅ Bloc boutique, cu doar 4 apartamente (2 pe nivel), oferind intimitate și comunitate restrânsă
✅ Disponibile apartamente atât la parter, cât și la etajul 1
📍 AVANTAJE:
✅ Zonă rezidențială liniștită și sigură
✅ Acces rapid către punctele de interes din Pitești
✅ Ideal atât pentru locuință permanentă, cât și pentru investiție
✅ Finisaje de calitate superioară și design modern
💰 Prețul nu include TVA.
🕒 Termen de finalizare – nu mai târziu de 31.12.2026 (în funcție de vânzări).
📞 Alege confortul, siguranța și eleganța într-un apartament modern, situat într-una dintre cele mai căutate zone din Pitești – Găvana!
🔝 NEXT LEVEL IMOB – Alegerea inteligentă în imobiliare!