


















NEXT LEVEL IMOB vă prezintă o casă tip duplex modernă, situată în renumitul cartier Brătieni din Ștefănești, o zonă apreciată pentru liniște, infrastructură completă și priveliștea deosebită asupra orașului Pitești.
🏡 DETALII PROPRIETATE:
✅ Suprafață utilă: 120 mp
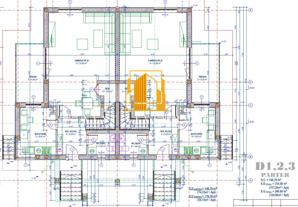
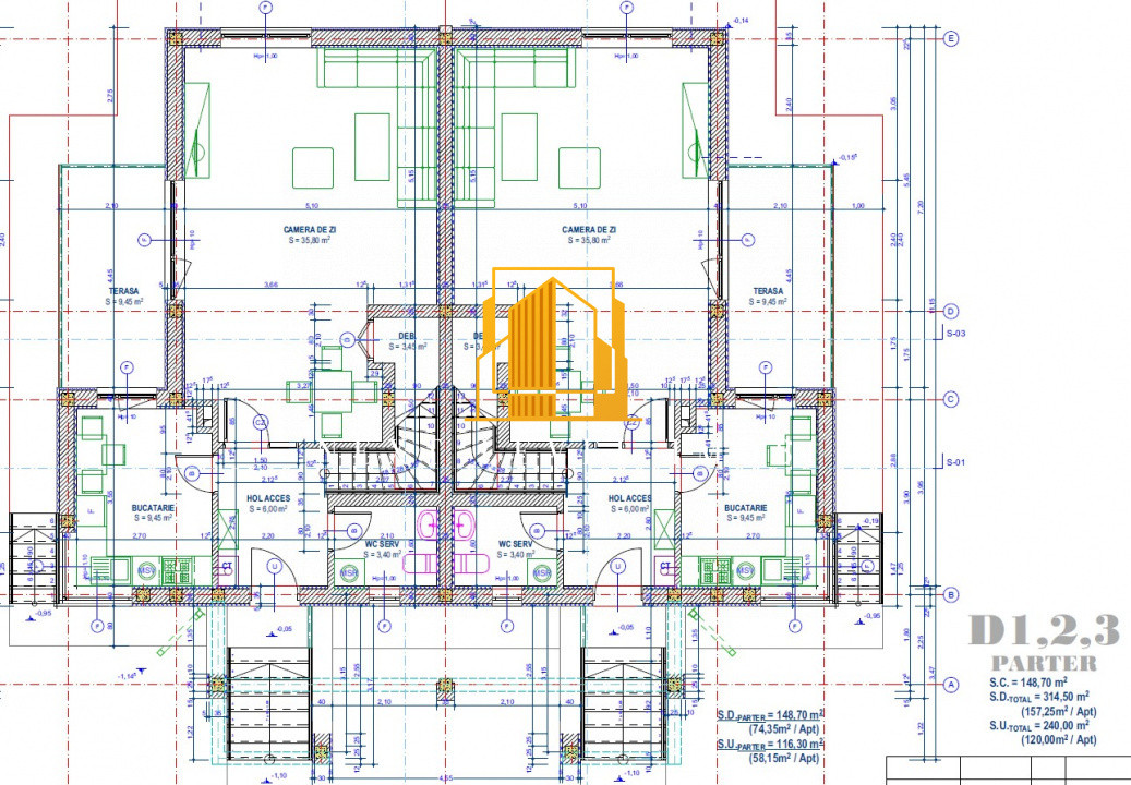
✅ Suprafață construită: 150 mp
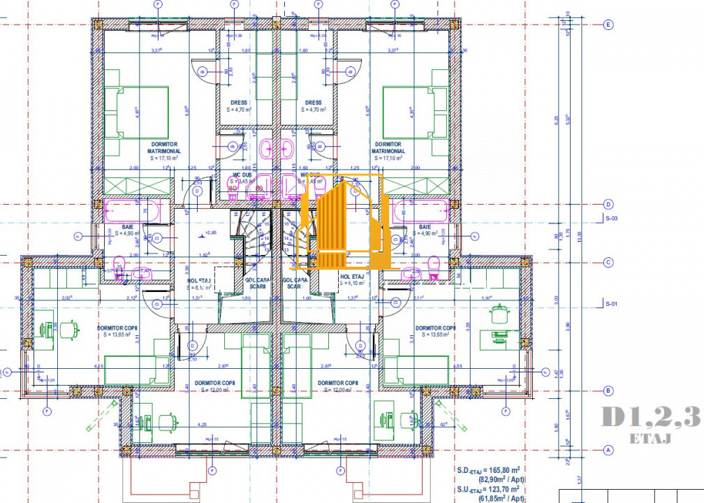
✅ Regim de înălțime: parter + etaj + pod spațios cu acces prin scară pliantă
✅ Parter: living generos de 35,8 mp, bucătărie, baie, spațiu de depozitare, hol și terasă
✅ Etaj: 3 dormitoare dintre care unul este matrimonial (cu baie și dressing), baie comună și hol de acces
✅ Pod generos, excelent pentru depozitare
📍 AVANTAJE:
✅ Zonă exclusivistă, cu vedere către orașul Pitești
✅ Posibilitatea cumpărătorului de a-și alege finisajele: parchet, gresie, faianță, scară etc.
✅ Cartier construit unitar de același dezvoltator – infrastructură modernă și sigură
✅ Construcție solidă: zidărie Porotherm, termoizolație cu vată minerală bazaltică de 10 cm grosime la exterior și vata minerala în grosime de 5 cm la interior, structuri din beton armat
✅ Construcție solidă: fundații continue din beton armat și structură de rezistență calculată să facă față seismelor conform normativelor în vigoare
✅ Utilități complete: apă, canalizare, gaze, energie electrică, drumuri asfaltate și iluminat public
Se vinde la stadiul actual „la alb”, cu posibilitatea personalizării finisajelor după preferințe.
💰 Prețul nu include TVA.
📞 Nu rata șansa de a te bucura de confortul unei case spațioase, construite cu atenție la detalii, amplasată într-o zonă liniștită și bine conectată la oraș!
🔝 NEXT LEVEL IMOB – Alegerea inteligentă în imobiliare!